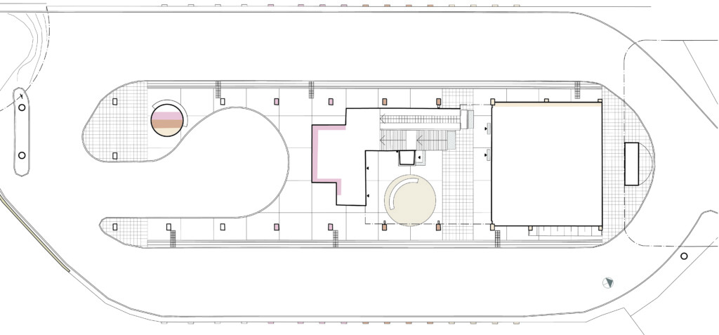
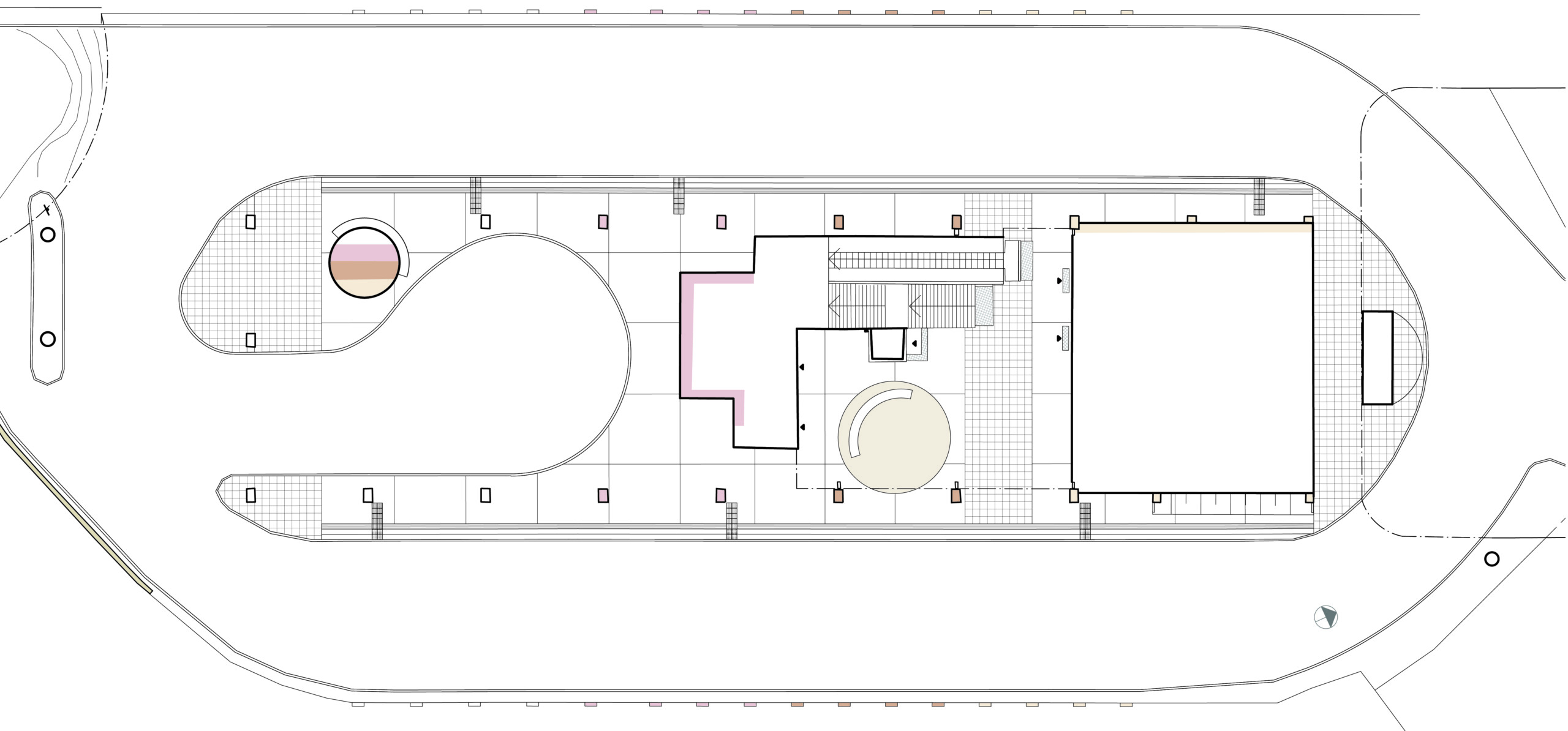
Akalla torg och bussterminal
Uppdragsgivare
Stockholm Stad
Projektgrupp
Åsa Drougge, Evelina Skogelid, Christiaan Smits, Linnéa Lundström
År
2020 – pågående
Plats
Akalla, Stockholm
Bildspel
Se bilder

Upprustningen av Akalla torg syftar till att skapa mer trygghet genom liv och rörelse på torget och en ljusare och mer välkomnande atmosfär i den underliggande bussterminalen. Mitt på Akalla torg ligger nedgången till tunnelbanan och bussterminalen under ett stort dominerande skärmtak. Söderut ansluter torget mot Akalla stadsdelspark vilket skapar en vacker fond och ett direkt möte mellan torg och park. Stora delar av markbeläggningen av grå betongmarksten och smågatsten bevaras, men torget får nya ljusa stenmjölsytor, lekfulla terrazzoelement, fler vistelseplatser och mer grönska. En ny färgsättning i en mjuk färgskala som harmonierar med Akallas karaktäristiska färgskala i rött och gult föreslås. Samtliga tillägg är utformade för att kunna lyftas bort och återplaceras efter ett framtida byte av torgets tätskikt.





















